Este site utiliza cookies para permitir a mudança de língua e o armazenamento dos seus imóveis favoritos. Ao utilizar este site, concorda que o mesmo utilize cookies.

  • (+351) 220 974 552

    (Chamada para a rede fixa nacional)

  • (+351) 912 447 727

    (Chamada para a rede móvel nacional)

Apartamento T4 a 15 min do Porto com garagem

429.000€




Referência

LP_SJ_P0_F0A

Natureza

Venda

Tipo de Imóvel

Apartamento

Tipologia

T4

Estado

Em Construção

Certificado energético

A+

Ano

2027


Distrito

Porto

Concelho

Maia

Freguesia

Pedrouços

Código Postal

4425


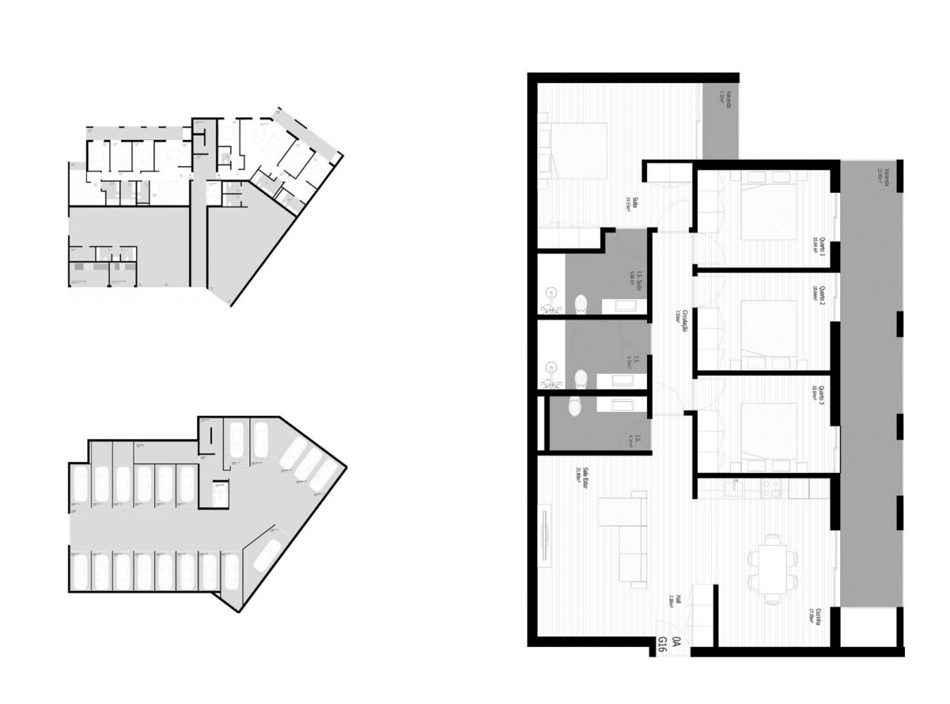
Área Útil

141.43 m2

Área Bruta

167.42 m2

Área de Terreno

0 m2



Contactar Imobiliária

*Preenchimento obrigatório
Ao clicar em 'Enviar', declara que aceita a nossa Política de Privacidade.
Este fantástico imóvel T4 com garagem, situa-se ao nível do rés do chão e é parte de um empreendimento residencial moderno. 

Pormenores a destacar:
- Caixilharia de alumínio com vidro duplo e corte térmico;
- Estores exteriores elétricos Termo lacados; 
- Elevador elétrico Schneider (ou equivalente); 
- Pré-instalação de Ar Condicionado;
- Pré-instalação de aquecimento central;
- Bomba de calor; 
- Estacionamento privativo; 
- Portões de garagem elétricos; 
- Ponto de carregamento elétrico na garagem; 
- Pavimento flutuante estratificado de carvalho (ou equivalente), de espessura usualmente entre 10 e 14 milímetros e camada de desgaste, em princípio em carvalho, que varia entre 2 e 4 milímetros; 
- Equipamento sanitário SANITANA (ou equivalente); 
- Eletrodomésticos (forno, placa e exaustor). A marca será em princípio WHIRLPOOL (ou equivalente). O forno e a placa serão Classe A ou superior e o exaustor será Classe B ou superior; 
- Revestimento cerâmico REVIGRÉS (ou equivalente). 

Localizado em Pedrouços, numa zona em forte valorização, este projeto beneficia de uma localização estratégica a apenas cerca de 15 minutos da cidade do Porto. 

Nos últimos anos, Pedrouços tem registado uma evolução muito significativa do ponto de vista urbanístico e estético, com melhorias importantes nos acessos, o desenvolvimento de novas urbanizações e a requalificação da sua principal avenida, tornando a zona cada vez mais atrativa para viver.

O empreendimento destaca-se ainda pela sua proximidade a importantes centros urbanos da região, permitindo chegar rapidamente a cidades como a Maia, Vila Nova de Gaia e o Porto. A excelente acessibilidade, aliada à tranquilidade da envolvente, cria o equilíbrio perfeito entre centralidade e qualidade de vida. 

Este empreendimento representa uma oportunidade única, ideal tanto para habitação própria como para investimento seguro numa zona com crescente procura e valorização imobiliária.

Exposição solar: poente.
Geral
GeraisRés do chão:Sim
GeraisNº de Divisões :11
GeraisNº de Casas de Banho:3
GeraisArmário de roupa / closet:Sim
GeraisSuite:Sim
GeraisAdaptado a mobilidade reduzida:Sim
GeraisRecomendado para crianças:Sim
ClimatizaçãoAquecimento central:Sim
ClimatizaçãoAr condicionado:Sim
ClimatizaçãoBomba de calor:Sim
CaixilhariaAluminio:Sim
CaixilhariaVidro Duplo:Sim
CaixilhariaEstores:Sim
VistasCampo:Sim
VistasCidade:Sim
VistasJardins:Sim
Quarto de BanhoComum:Sim
Quarto de BanhoPróprio:Sim
Luz NaturalMuito Iluminado:Sim
Ar CondicionadoPré-instalado:Sim
InfraestruturasEsgotos:Sim
GaragemIndividual:Sim
GaragemFechada Interior:Sim
GaragemLugar Interior:Sim
CozinhaPlaca:Sim
CozinhaForno:Sim
CozinhaExaustor:Sim
PavimentoMadeira:Sim
PavimentoCerâmica:Sim
PavimentoFlutuante:Sim
Edificio
GeraisNº de Frentes :2
GeraisNº de Varandas:2
GeraisPermite animais:Sim
GeraisAcesso mobilidade reduzida:Sim
GeraisEstacionamento incluido:Sim
ElevadorNº de Elevadores:2
Tipo de EmpreendimentoCondomínio fechado:Sim
IsolamentoAcústico:Sim
IsolamentoTérmico:Sim
EquipamentoVideo-Porteiro:Sim
ÁguaCompanhia:Sim
GaragemLocal:Sim
GaragemPortão automático:Sim
GaragemÁgua:Sim
GaragemLuz:Sim
GaragemElectricidade:Sim
Domótica
GeraisEstores elétricos:Sim
Aquecimento CentralPré-instalação:Sim
Painel SolarPré-instalado:Sim
Zona
AcessosAlcatrão:Sim
Varanda :26.1 m2
Garagem :28.9 m2

Imóveis
Semelhantes

Apartamento
Venda
IM HOME

240.000€

T1 com varanda e garagem no São João

240.000€

Porto / Maia / Pedrouços


Ref: LP_SJ_P1_F1B

Ref: LP_SJ_P1_F1B

53.5 m2

2

1

Apartamento
Venda
IM HOME

325.000€

Apartamento T3 remodelado em Águas Santas

325.000€

Porto / Maia / Águas Santas


Ref: AP_015

Ref: AP_015

105.25 m2

3

2

Sim

Apartamento
Venda
IM HOME

390.000€

T3 com varanda e lugar de garagem no São Joã...

390.000€

Porto / Maia / Pedrouços


Ref: LP_SJ_P0_F0B

Ref: LP_SJ_P0_F0B

129.75 m2

3

2