(Chamada para a rede fixa nacional)
(Chamada para a rede móvel nacional)
320.000€
Referência
LP_GG_L10_P1_FA11
Natureza
Venda
Tipo de Imóvel
Apartamento
Tipologia
T3
Estado
Em Construção
Certificado energético
A
Ano
2027
Distrito
Porto
Concelho
Gondomar
Freguesia
Fânzeres e São Pedro da Cova
Código Postal
4510
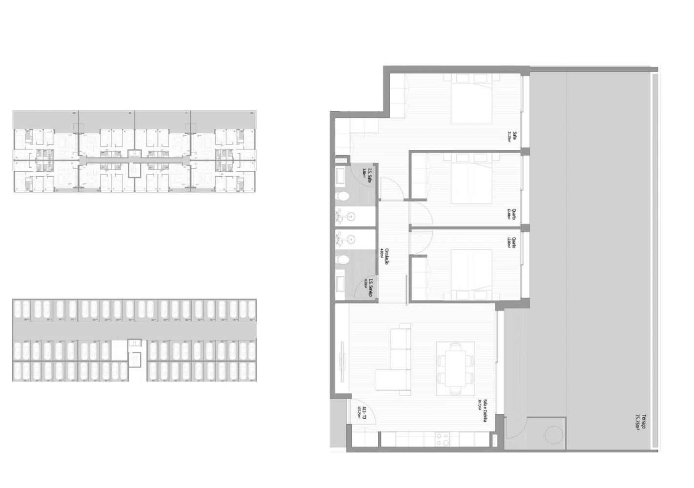
Área Útil
107.25 m2
Área Bruta
183 m2
Área de Terreno
0 m2
IM HOME
Rua do Campo Alegre 1162 , 4150-173, Porto (+351)220 974 552
(Chamada para a rede fixa nacional)
(+351)912 447 727 (Chamada para a rede fixa nacional)
Apartamento T3 situado no primeiro piso, com uma generosa área exterior e lugar de estacionamento, inserido num empreendimento moderno pensado para quem valoriza qualidade de vida, conforto e proximidade à cidade. Este apartamento destaca-se pelas suas áreas amplas e bem distribuídas, concebidas para proporcionar funcionalidade e bem-estar no dia a dia. A luminosidade natural assume um papel central em todos os espaços, criando ambientes acolhedores e agradáveis para toda a família. A área exterior privada oferece um espaço adicional ideal para momentos de lazer, refeições ao ar livre ou simplesmente para desfrutar de um ambiente tranquilo. O lugar de estacionamento acrescenta maior comodidade e praticidade à rotina diária. Pontos a destacar: - Caixilharia de alumínio, sistema de correr, com perfil da Cortizo, ou equivalente, com vidro duplo e corte com rutura térmica; - Estores exteriores elétricos, em alumínio termolacado a cor pré-definida; - Elevador elétrico Schmitt (ou equivalente); - Pré-instalação de Ar Condicionado; - Pré-Instalação de Painéis Solares na cobertura; - Bomba de calor com serpentina para aquecimento das águas sanitárias; - Estacionamento privativo, para um ou dois veículos; - Portões de garagem automáticos e motorizados; - Ponto de carregamento elétrico na garagem; - Pavimento em vinílico rígido do tipo OneFloor Europe, modelo Rigid 55XL, ou equivalente, de espessura de 6 milímetros; - Equipamentos sanitários da marca SANITANA, ou equivalente; - Eletrodomésticos (Forno, Micro-ondas, Placa, Exaustor, Máquina de Lavar Loiça, Máquina de Lavar Roupa e Frigorífico Combinado). Equipamentos de marca AEG, ou equivalente. - Revestimento cerâmico do tipo Porcelanosa, ou equivalente. O empreendimento foi projetado com especial atenção à qualidade dos materiais e ao detalhe, privilegiando também a presença de espaços verdes envolventes que contribuem para um ambiente calmo e equilibrado. Localizado em Gondomar, numa zona residencial tranquila e cada vez mais valorizada, beneficia de excelentes acessos e da proximidade à cidade do Porto, permitindo usufruir de todas as comodidades urbanas sem abdicar da serenidade de viver fora do centro. Uma excelente oportunidade tanto para habitação própria como para investimento.
| Climatização | Ar condicionado: | Sim |
|---|---|---|
| Climatização | Bomba de calor: | Sim |
| Caixilharia | Aluminio: | Sim |
| Caixilharia | Termolacada: | Sim |
| Caixilharia | Vidro Duplo: | Sim |
| Caixilharia | Estores: | Sim |
| Vistas | Campo: | Sim |
| Vistas | Cidade: | Sim |
| Vistas | Jardins: | Sim |
| Exposição Solar | Nascente: | Sim |
| Gerais | Nº de Divisões : | 8 |
| Gerais | Nº de Casas de Banho: | 2 |
| Gerais | Nº de Terraços: | 1 |
| Gerais | Armário de roupa / closet: | Sim |
| Gerais | Suite: | Sim |
| Gerais | Adaptado a mobilidade reduzida: | Sim |
| Gerais | Recomendado para crianças: | Sim |
| Quarto de Banho | Comum: | Sim |
| Quarto de Banho | Próprio: | Sim |
| Luz Natural | Muito Iluminado: | Sim |
| Ar Condicionado | Pré-instalado: | Sim |
| Infraestruturas | Esgotos: | Sim |
| Garagem | Lugar Interior: | Sim |
| Cozinha | Placa: | Sim |
| Cozinha | Forno: | Sim |
| Cozinha | Exaustor: | Sim |
| Cozinha | Micro-ondas: | Sim |
| Cozinha | Frigorífico: | Sim |
| Cozinha | Máquina de lavar loiça: | Sim |
| Cozinha | Máquina de lavar roupa: | Sim |
| Pavimento | Piso vinílico: | Sim |
| Pavimento | Cerâmica: | Sim |
| Gerais | Nº de Frentes : | 1 |
|---|---|---|
| Gerais | Nº de Lugares de Estacionamento: | 1 |
| Gerais | Permite animais: | Sim |
| Gerais | Acesso mobilidade reduzida: | Sim |
| Gerais | Estacionamento incluido: | Sim |
| Elevador | Nº de Elevadores: | 2 |
| Tipo de Empreendimento | Condomínio fechado: | Sim |
| Tipo de Empreendimento | Habitação: | Sim |
| Tipo de Empreendimento | Lojas: | Sim |
| Tecto Hall de Entrada | Falso pladur: | Sim |
| Equipamento | Jardins: | Sim |
| Equipamento | Video-Porteiro: | Sim |
| Água | Companhia: | Sim |
| Garagem | Local: | Sim |
| Garagem | Portão automático: | Sim |
| Garagem | Água: | Sim |
| Garagem | Luz: | Sim |
| Garagem | Electricidade: | Sim |
| Gerais | Estores elétricos: | Sim |
|---|---|---|
| Aquecimento Central | Pré-instalação: | Sim |
| Painel Solar | Pré-instalado: | Sim |
| Gerais | Auto-Estrada: | Sim |
|---|---|---|
| Gerais | Comboio: | Sim |
| Gerais | Transportes públicos: | Sim |
| Proximidade | Bancos: | Sim |
| Proximidade | Bombeiros: | Sim |
| Proximidade | Clínicas: | Sim |
| Proximidade | Escolas: | Sim |
| Proximidade | Farmácias: | Sim |
| Proximidade | Ginásios: | Sim |
| Proximidade | Hospitais: | Sim |
| Proximidade | Jardins: | Sim |
| Proximidade | Jardins de infância: | Sim |
| Proximidade | Padarias: | Sim |
| Proximidade | Polícia: | Sim |
| Proximidade | Serviços públicos: | Sim |
| Proximidade | Supermercados: | Sim |
| Acessos | Alcatrão: | Sim |
| Centralidade | Junto à cidade: | Sim |
| Varanda : | 75.75 m2 |
|---|---|
| Garagem : | 15.6 m2 |
265.000€
265.000€
Porto / Gondomar / Fânzeres e São Pedro da Cova
Ref: LP_GG_L11_P1_FA11
Ref: LP_GG_L11_P1_FA11
350.000€
350.000€
Porto / Gondomar / Fânzeres e São Pedro da Cova
Ref: LP_GG_L10_P3_FA32
Ref: LP_GG_L10_P3_FA32